一、概述
采用磁集成技术将变压器与电抗器集成,能够进一步提高UPS变压器、地铁牵引等变压器的功率密度和工作效率,改善输出波纹,提高输出动态性能;有效减少一次 侧逆变管损耗及磁件的体积和损耗。所谓磁集成技术,是将变压器中的两个或多个 分立磁件(discrete magnetics,DM)绕制在一副磁芯上,从结构上集中在一起,集 中后的磁件称为集成磁件(integrated magnetics IM)通过一定的耦合方式,合理的 参数设计,有利于产品集成化、小型化;磁集成技术还能减少连接端,可有效减少大 电流场合连接端子的损耗。
二、性能特点
我司的磁集成变压器可满足客户任一短路阻抗需求(通常5%~30% ),隔离变压器、自耦变压器、单相、三相均适用我们采用行业内计算工具对其漏感进行设计与计算,能够十分准确合理的确定主副铁截面大小,一步到位确定副铁气隙、产品 温升、体积等重要技术参数;我们的箔绕机专为双铁心变压器定制,特别适合这种变 压器的线圈绕制。
三、原理
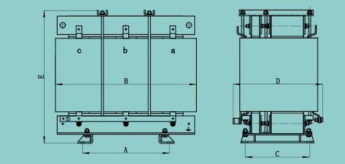
四、参数与尺寸

| 型号 |
相数 |
额定容量 KVA |
频率 HZ |
尺寸 /mm |
绝缘等级 |
| A |
B |
C |
D |
E |
安装孔 |
| SGK - 2 |
3 |
80 |
50 |
380 |
615 |
280 |
400 |
590 |
14*20 |
H |
| SGK - 2 |
3 |
100 |
50 |
400 |
735 |
400 |
460 |
580 |
14*20 |
H |
注:特殊规格与尺寸可根据客户要求制作。